ЖК Kazakov Grand Loft
Главная идея была в том, чтобы сделать оригинальный стильный интерьер, но использовать базовые цвета в отделке, мебели и текстиле
Объект: новостройка
Кто будет жить: под сдачу
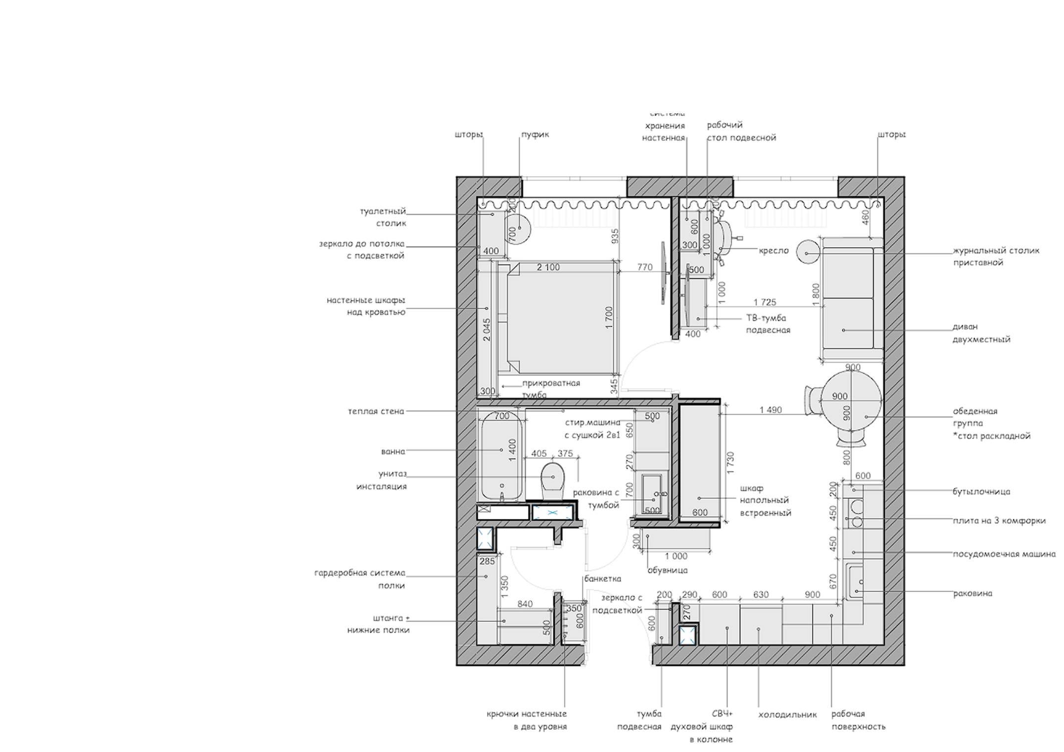
Метраж: 39 м²
Тип проекта: полный комплект чертежей с визуализацией и подбором мебели
Объект: новостройка
Кто будет жить: под сдачу
Метраж: 39 м²
Тип проекта: полный комплект чертежей с визуализацией и подбором мебели
3D-Визуализация объекта
Планировочные решения и чертежи
Ремонт квартиры по дизайн-проекту (реализация)
Видеообзор объекта
Квартиру делали под сдачу, поэтому она максимально универсальная и в палитре, и в использовании: никогда не угадаешь, кто конкретно её будет снимать. А ещё особое внимание уделили системе хранения, чтобы квартира получилась вместительной, но не загроможденной. Подробнее расскажет автор проекта, Полина Малькова! Смотрите видео